Vive rodeado de naturaleza

Lotes campestres en Turbaco, Bolívar

¿Quiénes somos?

Verdeza es un proyecto inmobiliario campestre que nace de la necesidad de volver a lo esencial: la naturaleza, la tranquilidad y el valor de la vida en familia. Es un espacio creado para quienes desean vivir lejos del ruido, rodeados de zonas verdes, aire puro y paisajes que transmiten calma.

En Verdeza, cada detalle está pensado para brindar bienestar, seguridad y calidad de vida, promoviendo un estilo de vida más consciente, en armonía con el entorno y con el tiempo que realmente importa. Aquí, lo campestre se convierte en hogar, y la naturaleza en parte de tu día a día.

20 Hectareas
290 Lotes disponibles
300m2 Desde
600m2 Hasta

Amenidades

Todo lo que necesitas para vivir bien

Ecocamp
Ecocamp
Piscinas
Piscinas
Porteria
Porteria
Mallas Catamaràn
Mallas Catamaràn
zona deportiva
Zona deportiva

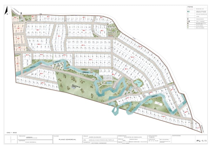
Plano de loteo

conoce la distribucion del proyecto

Plano de loteo Verdeza

🔍 Haz clic para ampliar

Nuestra ubicación

La mejor ubicacion para tu hogar soñado

Estamos ubicados en Turbaco, Bolívar, una zona tranquila rodeada de montañas y naturaleza.

📍 Detrás de Bonanza, Turbaco, Bolívar
🚗 A solo 20 minutos de Cartagena
🌿 Zona de gran valorización y desarrollo
🏞️ Rodeado de montañas y zonas verdes

Contáctanos

Estamos listos para atenderte

Información de contacto

📱 300 627 5231 - 3218665485
☎️ 605 641 6278
✉️ gerenciaventaspromotoraverdeza@gmail.com
📍 Turbaco, Bolívar, Colombia
🕐 Lunes a Sábado — 8am a 6pm
WhatsApp